{{ 'fb_in_app_browser_popup.desc' | translate }} {{ 'fb_in_app_browser_popup.copy_link' | translate }}

{{ 'in_app_browser_popup.desc' | translate }}

場 地 租 借

| 直營店 台北大稻埕店 

 

kawas的台北旗艦店,位在擁有舊城歷史軌跡的大稻埕,擁有深厚歷史傳承的百年老舖,一起漫步在古樸的街區。

 

| 場 地 資 訊 |

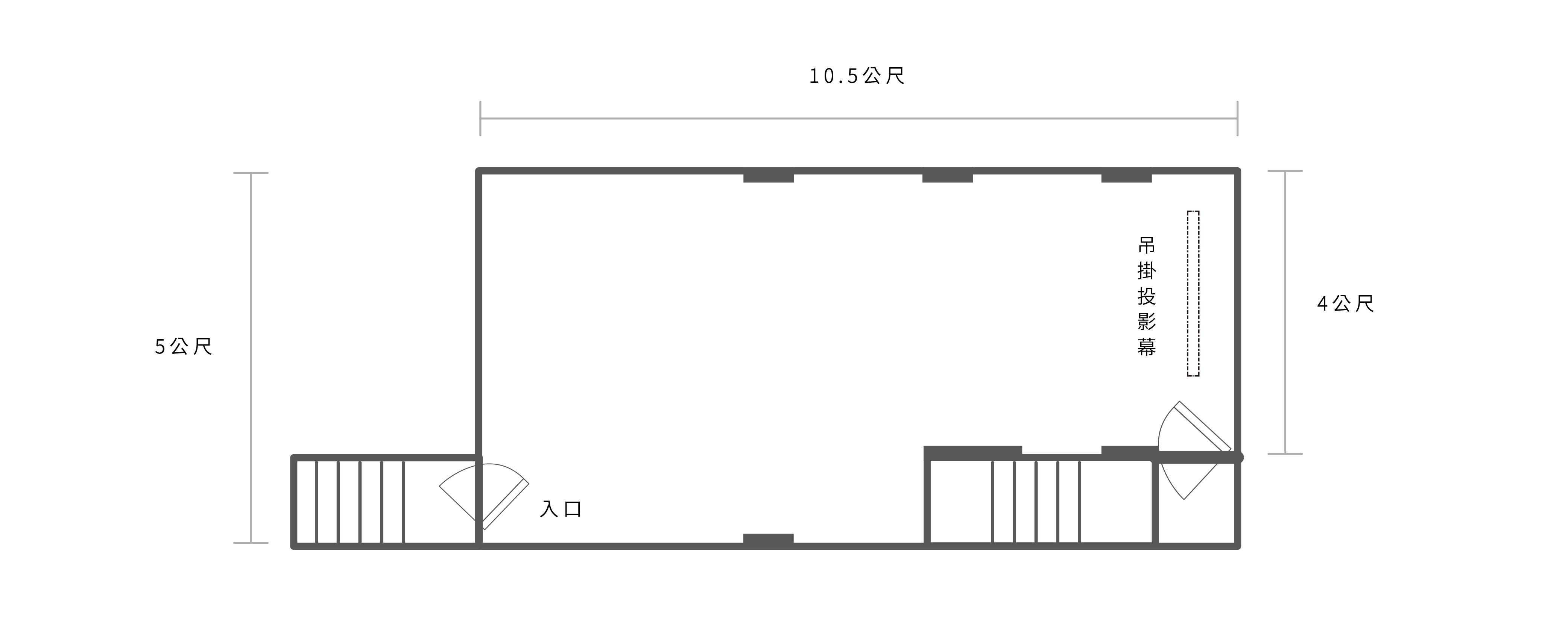
○ 坪數:13 坪 / 42 平方公尺 

○ 可容納人數:20-30人 

○ 設備提供:無線wifi、投影機、音響、投影布幕、麥克風、投影筆

○ 場地規範:因場地清潔人力有限,活動結束後請將垃圾自行攜離開,並維持場地整潔。

廁所垃圾不落地,讓下個使用者有舒適的場域,請租借者共同愛惜資源。

○ 租借需求請親洽店面

 

103台北市大同區迪化街一段32巷19號

週一 - 週日 11:30-20:00,16:00-17:00 休息

電話 02-25552182

 

 

| 交 通 資 訊 |

建議搭乘大眾運輸工具

○ 捷運:北門站步行十分鐘,從北門三號出口前往永樂市場方向,看到屈辰氏大藥局巷子左轉到底,就到了!

○ 開車:因附近道路假日有做交通管置,建議多使用停車場APP,查詢尚有車位的車場。

-應安168停車聯盟 (永樂室內停車場220公尺) 走路1分鐘

-塔城公園停車場 (500公尺)走路7分鐘

 

FB| kawas 大稻埕店   

 IG|kawasddc

  

 

 

| 直營店 台中國美店 

 

在台中美術館深具文藝氣息的街區設點,旁邊有公園綠蔭,在溫暖的陽光下,古樸的翻新老宅,一起來店感受舒服的戶外生活。

 

| 場 地 資 訊 |

○ 坪數:8 坪 / 26 平方公尺 

○ 可容納人數:15-25人 

○ 設備提供:Macbook筆電、無線wifi、投影機、音響、投影布幕、麥克風、投影筆

○ 場地規範:因場地清潔人力有限,活動結束後請將垃圾自行攜離開,並維持場地整潔。廁所垃圾不落地,讓下個使用者有舒適的場域,請租借者共同愛惜資源。

○ 租借需求請親洽店面

 

台中市西區大忠里存中街163號

週一 - 週日 11:30-20:30

電話 04-2371 2182 

 

 

| 交 通 資 訊 |

○ 開車:土庫停車場

○ 高鐵:高鐵台中站 出站後可接駁捷運/公車/計程車 走路3分鐘

○ 公車:站名 土庫停車場(國美館) 159, 52, 79 下車後走路約1分鐘

○ 捷運:台中捷運綠線 G11南屯站 出站後走路約15分鐘 或 Youbike約7分鐘 ​

○ Youbike:站點 綠十八公園 走路距離約1分鐘 

 

 

FB|kawas 台中國美店    

 IG|kawasntma